JavaScript lijkt uitgeschakeld te zijn in uw browser.
U moet JavaScript in uw browser hebben ingeschakeld om de functionaliteit van de website te gebruiken.
Inloggen
Nieuws
Alle vestigingen
Over Wasco
Klantenservice
Vacatures
Vestigingen
088 099 5000
(Gratis)
Zoek
Zoek
Sluit
Assortiment
Diensten
Merken
Kennis
Assortiment
Verwarming
Warmwatertoestellen
Warmtebronnen
Vloerverwarming
Zonneboilersystemen
PVT-systemen
Radiatoren en convectoren
Elektrisch verwarmen
Infrarood verwarming
Regelingen en thermostaten
Expansievaten en -automaten
Bevestigingsmateriaal
Vullen en aftappen
Waterzijdig inregelen
Ontluchten en vuil afscheiden
Appendages
Rookgasafvoer
Dak- en geveldoorvoeren
Bovendaks- en geveltoebehoren
Onderdaks toebehoren
Leidingwerk
Onderdelenzoeker
Verwarming Outlet
Verwarming Deals
Airconditioning
Airco toebehoren
Airco apparatuur
AirConfigurator
Leidingen, isolatie en fittingen
Bevestigingsmateriaal
Gereedschap en meetapparatuur
Service en onderhoud
Storingscodezoeker
Onderdelenzoeker
Airconditioning Deals
Garantie formulier
Koudemiddelen
Airconditioning Outlet
Sanitair
Toilet
Kraan
Douche
Wastafel
Keuken
Badmeubel
Afvoeren
Onderdelenzoeker
Spoelsystemen
Loodgietersmateriaal
Fontein
Bad
Accessoires
Urinoir
Bidet
Gootsteen (uitstort)
Ergonomisch
Utiliteit
Pompen
Badkamerverwarming
Aansluitmateriaal
Appendages
Waterontharders
Sanitair outlet
Sanitair deals
Onderdelen
Onderdelenzoeker
Storingscodezoeker
Periodiek onderhoud
Appendages
Elektra
Gereedschap
Gereviseerd
Hulpmateriaal
Meetapparatuur
Oliestook
Pompen
Preventie en detectie
Regelapparatuur
Onderdelen Deals
Stofzuigers
Stookaccessoires
Werkkleding en PBM
Onderdelen Outlet
Ventilatie
Ventilatoren
Regelingen
Toevoer en afvoer
Doorvoeren
Balansventilatie WTW
Ventilatie warmtepomp
Utiliteit
Service en onderhoud
Onderdelenzoeker
Ventilatie Outlet
Keuzegids Ventilatie
Duurzaam
Warmtepompen
Ventilatie
Warmwatertoestellen
Zonneboilersystemen
Smart Home
Vloerverwarming
Lage temperatuur verwarming
Elektrisch verwarmen
Infrarood verwarming
PV-systemen
Energie-opslag en laadstations
PVT-systemen
Luchtverwarming
Biomassa
Stadsverwarming
Elektra
Warmtepomp Deals
Warmtepomp Outlet
Duurzaam Outlet
Meer...
Afvoer en riolering
Dakbedekking
Dakgoten en HWA
Smart Home
Elektra
Koeltechniek
Bevestigingsmateriaal
Non-ferro
Leidingwerk
Leidingsystemen
Hulpmateriaal
Gereedschap
Deals
Deals artikelen
Deals folder
Deals in je mailbox?
Airco Deals
Sanitair Deals
Warmtepomp Deals
Ketel Deals
Ultra 8 - nu met gratis kop!
Outlet
Diensten
Advies en ondersteuning
Advies
Garantie
Technische ondersteuning
Contact
Formulieren
Gereedschap
Inbedrijfstelling airco aanvragen
Storing
Prefab
Tools en documentatie
App
Beheer op afstand
Digitale diensten
Formulieren
Garantie
Tips en how-to
Koppeling
Rekentools
Selectiekaarten
SaniMan
Storingscodezoeker
Subsidiemogelijkheden
Wetten en regelgeving
Logistieke ondersteuning
Voorraad
Leveren
Prefab
Merken
Merkenoverzicht
Merkenoverzicht
Kennis
Productkennis
Airconditioning
Cv-ketels
PV-panelen
PVT-panelen
Ventilatie
Vloerverwarming
Warmtepompen
Wtw
How-tos
Branchekennis
Subsidiemogelijkheden
Wetten en regelgeving
Certificeringen
Columns
Kennisevenementen
Baliedagen
Kennissessies
Webinars
WasCollege
Algemene informatie
Contact
Locaties
Opleiders
Opleidingen
Magazines
Koppeling
SaniMan
Mijn account
(inloggen)
Klant worden?
Wachtwoord vergeten?
Onthoud mij
Inloggen
Vestigingen
Je probeert onze website te bekijken via een browser die wij helaas niet meer ondersteunen per 1 februari 2021. Hierdoor werkt de website voor jou mogelijk niet optimaal. Wij willen natuurlijk dat je op de beste en veiligste manier onze website kunt bezoeken. Daarom adviseren wij je om een andere browser te installeren. Wil je weten hoe je dat kunt doen?
Lees hier dan meer.
U bent hier:
Home
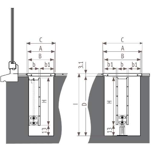
Jaga LOW-H2O warmtewisselaar inbouw in put type 20 l= 2113mm h= 400mm 5124 Watt
Jaga LOW-H2O warmtewisselaar inbouw in put type 20 l= 2113mm h= 400mm 5124 Watt
artikelnr: 5198749
leveranciersnr: BIFW.04022020
Dit artikel is niet meer leverbaar
hiddenlink
Jouw brutoprijs
€750,00
per stuk
Log in voor jouw prijs
Kenmerken
Kenmerken
Merk
Jaga
Leverancierscode
BIFW.04022020
Product soort
Convectorput
Serie
Low-H2O
Type
20
Model
Inbouw in put
Lengte
2113 mm
Hoogte
400 mm
Warmte afgifte 75/65/20
5124 Watt
Bekijk alle Jaga producten
Toevoegen aan verlanglijst
Opslaan
Verder Winkelen
Naar favorieten
Sluit